EFR UPGRADE - Casa veche de renovat si teren de vanzare zona Bucurestii noi Damaroaia
Descriere casa vila
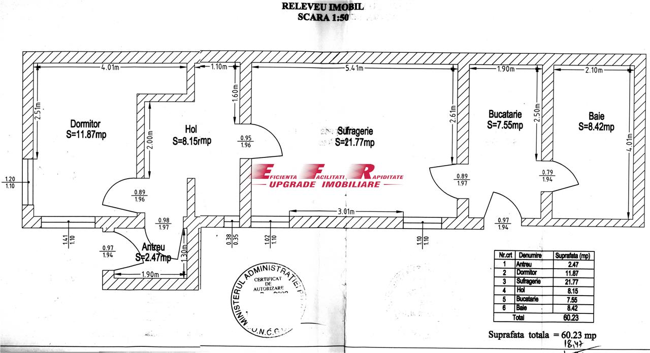
EFR UPGRADE IMOBILIARE va ofera spre vanzare casa de renovat cu zidarie de caramida (numai Parter) cu teren - amplasata aproape de piata 16 februarie, Bucurestii Noi. SE POATE ACHIZITIONA SI PENTRU DEZVOLTARE INVESTITIE. Imobil principal an 1936, anexe an 2005 aproximativ. Constructii din vecinatate lipite pe trei laturi de proprietate. Dispune de o suprafata utila de 60 mp. Suprafata totala teren 298mp, anexe in suprafata de 131mp. Amprenta 208mp, curte libera 90mp. Deschidere teren 14,90m. Compartimentare ( tip vagon) : 2 camere si o bucatarie o baie holuri si dependinte garaj betonat, anexe renovate acum 12 ani, dar in stare proasta. Parchet din lemn masiv, termopan la o camera, usi metalice (doua intrari), gresie la bucatarie, gresie si faianta la baie. Anexele sunt partial finisate cu gresie si faianta, usi si ferestre de termopan la unul dintre corpuri. Usi metalice sau din lemn la celelalte corpuri. Dispune si de urmatoarele : Putina curte interioara (dar insorita) intre imobile asezate in forma de U (vezi schite), amplasate majoritar sud-vest (lumina multa!); Beci betonat cu suprafata de 19mp; Curent monofazic si trifazic, apa, canalizare, gaze, centrala termica; Sistem de alarma, internet pe fibra.Casa se vinde asa cum este, fara alte imbunatatiri. Disponibila imediat. Metrou statia Bucurestii Noi la 7 minute de mers. Aproape de intersectia cu str Pietei, langa parcul Bazilescu. Parc, la 5 minute, magazine, scoala, gradinita. Mijloace de transport multiple, toate in imediata apropiere. Cadastru, certificat energetic (clasa C). Pentru mai multe detalii si vizionari va rugam contactati brokerul. Vizionarea se va face numai in urma unei calificari riguroase a cumparatorului.!
ID Oferta: 286
| Pret Vanzare: | € 199,000 |
|---|---|
| Numar Camere: | 2 |
| Zona: | Damaroaia |
| Suprafata utila: | 60 mp |
| Reper: | |
| Strazi: | Asfaltate |
| Numar Dormitoare: | 1 |
| Tip casa: | Individuala |
| Numar Bai: | 1 |
| Numar Bucatarii: | 1 |
| An Constructie: | 1936 |
| Suprafata Teren: | 298 mp |
| Acces: | Auto, Pietonal |
| Front: | 15 ml / nr fronturi 1 |
| Destinatie: | Locuinta/Birou, Spatiu Comercial |
| Actualizat la: | 30 Martie 2026 |
| Numar de afisari: | 745 |
Caracteristici generale
- Stadiu: Finalizat
- Ferestre: Term. PVC
- Structura: Caramida
- Pereti: Var/Huma
- Materiale: Beton Armat, Caramida , Lemn
- Podele: Beton, Dusumea, Gresie
- Izolatii termice: Fara
- Acoperis: Tabla
- Curte: Betonata, Gradina
- Incalzire: Centrala Termica
- Mobilat: Nemobilat
- Bucatarie: Da
- Alte Dotari: Fara Dotari
- Utilitati: Apa, Canalizare, Curent trifazic, Gaz























